咨詢熱線:0756-8300750 / 0756-8300758

橡樹下遙想:山的那邊是什麼?——法國鄉村學校

浏覽量:2319作者:admin新聞日期:2019-04-24

項目以優美的流線型外觀坐落于橡樹之間的空地上。這些橡樹有着超過兩百年的樹齡。入口處的一株橡樹起到了一定的标志性作用,通過餐廳的大窗戶向外看去,自然與建築構成生動的極具場景感的畫面。另外一株橡樹位于操場上,靜靜注視着孩子們的嬉戲。

學校位于一個叫做 Sainte-Marie-Sicche 的偏遠村莊,這裡曾經是一個馬術區,然而現在草場荒廢,蕨類植物和樹木成為了入侵者。項目旨在實現這些不同門類植物之間的和諧共生和相互交融。在面對一大片景觀需要處理的時候,建築師選擇了尊重自然。

在這種背景下,無處不在的木材為建築提供了與大自然真正共生的機會。這種天然的建築材料首先代表了舒适,适合于一個為年幼的孩子們提供服務的項目。垂直布置的松木防滑釘連接起水平和垂直方向上的木構件,構成一個自然而精緻的網狀結構,并沿着立面鋪陳開來。纖細的木杆件與杆件之間的空隙,共同創造出美妙的光影韻律。

這種整體性很強的木結構仿佛是一個外罩,輕輕地落在花崗岩構成的實牆的上部。敦厚的岩石牆體取材于古老的科西嘉島上的建築,在搭砌建造之前,石頭在現場進行了尺寸的調整。

整個建築體量位于基地北部,面朝村莊,仿佛是傳統建築的标志一般。起伏的屋頂與周圍群山的天際線相呼應,輕盈而剔透的質感使其仿佛是一個珍寶箱,靜靜地守護着屋内屋外學習或是玩耍的孩童。這種整體式的屋頂不僅僅是該校園建築的标志性特征,同時還可以對建築進行微氣候調節。

f1.jpg

室内照片:

調整大小 9_WEARECONTENTS_AMELIA-TAVELLA-Ecole-A-Strega-00501L.jpg

調整大小 32_WEARECONTENTS_AMELIA-TAVELLA-Ecole-A-Strega-L.jpg

調整大小 5_WEARECONTENTS_AMELIA-TAVELLA-Ecole-A-Strega-01320L.jpg

調整大小 21_WEARECONTENTS_AMELIA-TAVELLA-Ecole-A-Strega-00431L.jpg

設計圖紙:

調整大小 49_Plan_Masse.jpg

▲總平面圖

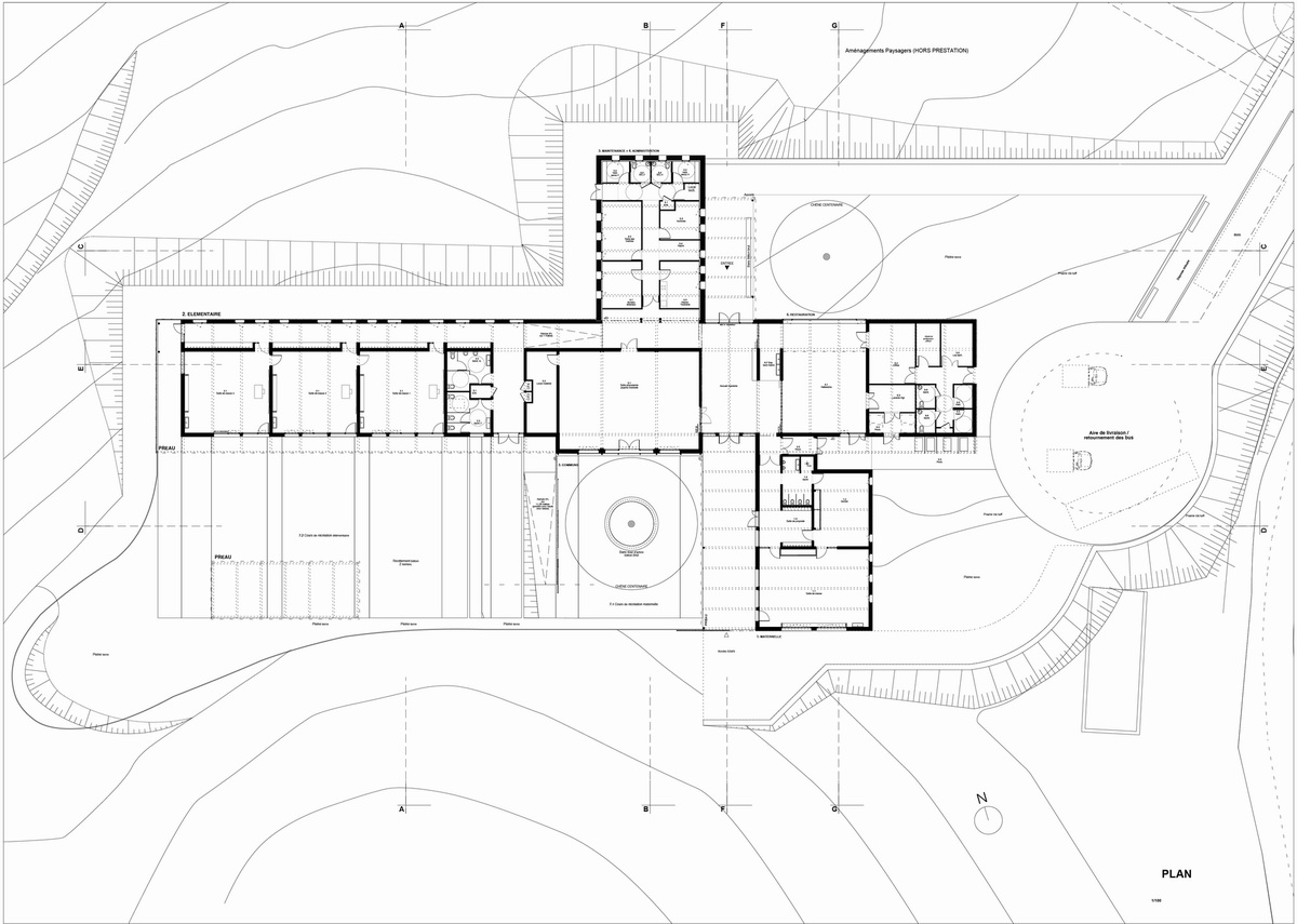
調整大小 7_Plan.jpg

▲底層平面圖

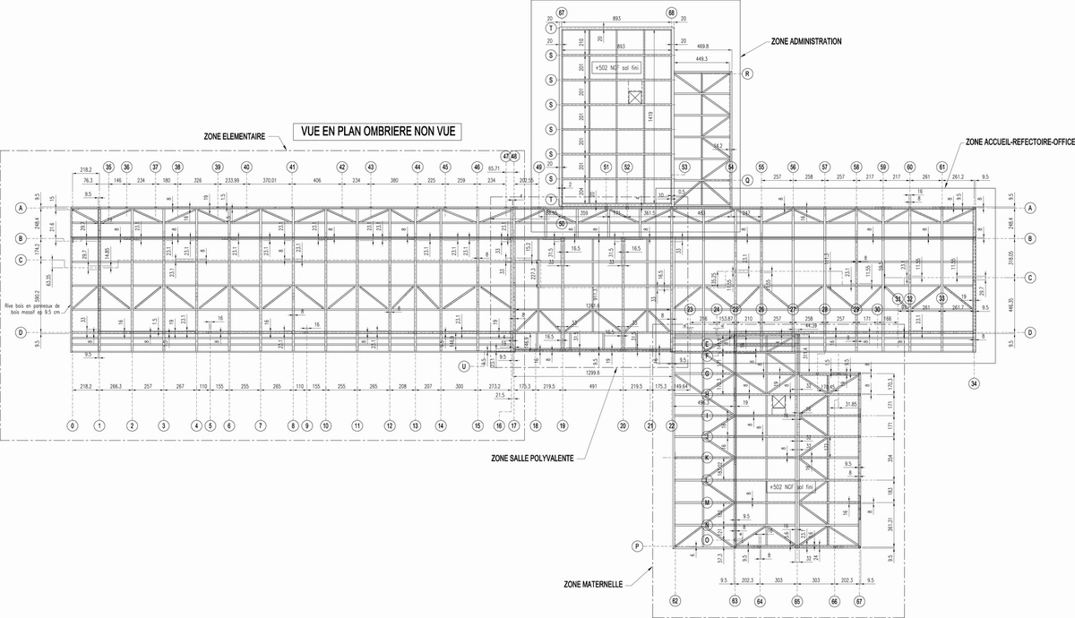
調整大小 38_Charpente_couverture_ossature_plan01.jpg

▲屋頂平面圖

41_Façade_sud.jpg

▲南立面圖

39_Façade_nord.jpg

▲北立面圖

40_Façade_ouest.jpg

▲西立面圖

調整大小 42_Charpente_couverture_ossature_bois_ombriere_plan_elevations.jpg

▲立面圖

調整大小 10_Coupe_longitudinale.jpg

▲剖面圖

43_Axonométrie.jpg

▲軸測圖

44_Charpente_couverture_ossature_bois_axonométrie_nord.jpg

▲北軸測圖

45_Charpente_couverture_ossature_bois_axonométrie_sud.jpg

▲南軸測圖

調整大小 46_Charpente_couverture_ossature_bois_ombriere_plan_elevations_details_01.jpg

▲細部圖

調整大小 48_Charpente_couverture_ossature_bois_zone_salle_polyvalente.jpg

▲細部圖

調整大小 47_Charpente_couverture_ossature_bois_ombriere_plan_elevations_details_02.jpg

▲立面細部圖

項目信息:

建築師:Amelia Tavella Architectes

地址:Cardo, 20190 Cardo-Torgia, 法國

類别:小學及初中

建築面積:1200.0 m2

項目年份:2018

攝影師:WE ARE CONTENT(S)

廠家:KLH, Placo, Saint-Gobain, Knauf, Tarkett

電氣、通風、HQE工程:Garcia Ingénierie

木結構工程師:T. Hulin

聲學設計:Acoustique & Conseil

客戶:Santa Maria Siché

項目管理:Socotec


來源丨http://www.archcollege.com/archcollege/2019/04/44138.html